熱門關鍵詞: 真空泵,水環式真空泵,旋片式真空泵
咨詢熱線
400-021-5161
400-021-5161
SZB型水環式真空泵,可供抽吸空氣或其它無腐蝕性不溶于水的、不含固體顆粒的氣體。最高真空度可達85%,特別適合于做大型水泵引水用。
目前制造的本型泵有:SZB-4, SZB-8。其中4 (8)表示當水銀柱高為520毫米時的氣量(升/秒)。
|
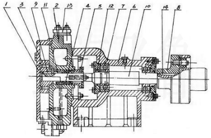
1 |
泵蓋 |
3 |
葉輪 |
5 |
填料壓蓋 |
7 |
滾珠軸承 |
9 |
葉輪平健 |
11 |
填料環 |
13 |
法蘭盤 |
|
2 |
泵體 |
4 |
填料 |
6 |
托架 |
8 |
聯軸器 |
10 |
泵軸 |
12 |
軸承壓蓋 |
14 |
聯軸器平健 |
|
型 號 |
排氣量Q |
毫米汞柱(mmHg) |
最大真空 度 |
轉數
(r/min)
|
電機功率(kw) |
口徑 |
泵重(kg) |
||
|
m3/h |
L/S |
|
|
|
|
吸入 |
吐出 |
|
|
|
SZB-4 |
19.8 |
5.5 |
440 |
80% |
1450 |
1.5 |
ZG1" |
ZG1" |
42 |
|
14.4 |
4 |
520 |
|||||||
|
7.2 |
2 |
600 |
|||||||
|
0 |
0 |
650 |
|||||||
|
SZB-8 |
38.2 |
10.6 |
440 |
80% |
1450 |
2.2 |
ZG1" |
ZG1" |
45 |
|
28.8 |
8 |
520 |
|||||||
|
14.4 |
4 |
600 |
|||||||
|
0 |
0 |
650 |
|||||||
1.真空泵啟動前,須檢查電機旋轉方向是否與泵的旋轉方向相符。軸承運轉、潤滑是否正常.并檢查填料壓緊程度是否適當,填料不能壓得過緊。正常壓緊的填料能夠使泵中的水成滴地向外漏出。取油浸過的石棉繩做姨料,然后從泵上的冷卻管(接在泵體側面的螺絲孔(16)上),灌入冷卻水,有汽水分離器者從汽水分離器灌入,并檢查吸氣管路連接是否嚴密后方可開啟泵。
2.真空泵在正常運轉時,須觀察是否有振動,細聽泵內是否有雜聲,并側定填料函和軸承溫度(正常軸承的溫度不得比環境溫度高出350 C,’但工作溫度不得超過70℃)。如果溫度超高,應立即停車檢查原因。
3.真空泵作為水泵真空引水用時,其運轉期間將水泵內的空氣全部吸出,直到將水泵內吸出水來以后,即開動水泵,待水泵正常工作后將真空泵停車,并將吸氣管路的截門關閉。
4.真空泵停車以后,將泵體內的水放凈,尤其是冷凍季節更要注意,以免使泵凍裂。如果準備長期停用.最好拆開泵的全部零件擦干,將轉動部位涂上黃油或防鑄油脂,再重新裝好,并將吸入口和排出口塞上一木塞,放里在較干澡的地方保存。